Skip To Content

8214 Energize Dr.

Longs, SC 29568
  • $442,990
  • STATUS: Active
  • ON SITE: 44 Days
  • MLS #: 2529044
UPDATED: 28 min ago
$442,990
  • 4
    BEDS
  • 0.15
    ACRES
  • 3
    BATHS
  • 0
    1/2 BATHS
  • 2,412
    SQFT
  • $184
    $/SQFT
Neighborhood:
Type:
Single-Family Home
Built:
2025
County:

School Information

Description

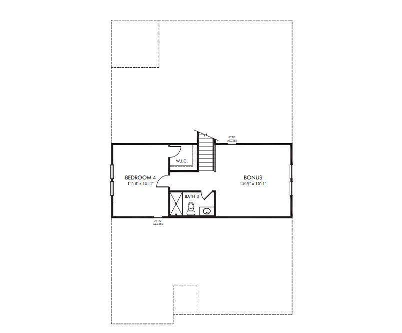
Brand new, energy-efficient home available by Dec 2025! Create an office or rec room in the Northbrook's upstairs bonus room. On the main level, the kitchen is the heart of the open-concept living space. Tray ceilings and a large walk-in closet complement the primary suite. From exciting attractions to relaxing weekends along sandy beaches and serene golf courses, Waterside offers easy access to the best shopping, dining and entertainment in North Myrtle Beach. Our new one- and two-story homes are perfect for any lifestyle. And when you are not out exploring, enjoy luxurious amenities including swimming pool, sports courts, day dock and much more. Each of our homes is built with innovative, energy-efficient features designed to help you enjoy more savings, better health, real comfort and peace of mind.

Monthly Payment Calculator



Coastal Carolina Association of Realtors logo© 2026 Coastal Carolinas Association of REALTORS® MLS. All rights reserved. IDX information is provided exclusively for consumers' personal, non-commercial use and may not be used for any purpose other than to identify prospective properties consumers may be interested in purchasing. Information is deemed reliable but is not guaranteed accurate by the MLS or Coldwell Banker Sea Coast Advantage. The data relating to real estate for sale or lease on this web site comes in part from CCAR. Real estate listings held by brokerage firms other than Coldwell Banker Sea Coast Advantage are marked with the CCAR logo or an abbreviated logo and detailed information about them includes the name of the listing broker. Data last updated: 2026-01-22T14:20:59.707.
www.cbseacoast.com/homes/171219648
Print Image

8214 Energize Dr. Longs, SC 29568

  • Price: $442,990
  • Status: Active
  • On Site: 44 Days
  • Updated: 28 min ago
  • MLS #: 2529044
4
Beds
3
Baths
0
½ Baths
0.15
Acres
2,412
SQFT
$184
$/SQFT
2025
Built
Neighborhood:
Waterside - Area 10A
County:
Horry
Area:
10A Conway To Myrtle Beach Area--Between 90 & Waterway Redhill/Grande Dunes
Elementary School:
Myrtle Beach Elementary School
Middle School:
Myrtle Beach Middle School
High School:
Myrtle Beach High School
Property Description
Brand new, energy-efficient home available by Dec 2025! Create an office or rec room in the Northbrook's upstairs bonus room. On the main level, the kitchen is the heart of the open-concept living space. Tray ceilings and a large walk-in closet complement the primary suite. From exciting attractions to relaxing weekends along sandy beaches and serene golf courses, Waterside offers easy access to the best shopping, dining and entertainment in North Myrtle Beach. Our new one- and two-story homes are perfect for any lifestyle. And when you are not out exploring, enjoy luxurious amenities including swimming pool, sports courts, day dock and much more. Each of our homes is built with innovative, energy-efficient features designed to help you enjoy more savings, better health, real comfort and peace of mind.
Exterior Features

Architectural Style Ranch Attached Garage YN Yes Construction Materials Brick Veneer Hardi Plank Type Exterior Features Porch Foundation Details Slab Garage YN Yes Lot Features City Lot Rectangular Rectangular Lot Parking Features Attached Garage Two Car Garage Garage Door Opener Parking Total 4 Patio And Porch Features Rear Porch Front Porch Pool Features Community Outdoor Pool Property Attached YN No

Interior Features

Appliances Dishwasher Disposal Microwave Range Hood Cooling Central Air Cooling YN Yes Flooring Carpet Tile Vinyl Furnished Unfurnished Heating Electric Heating YN Yes Interior Features Attic Pull Down Attic Stairs Permanent Attic Stairs Split Bedrooms Entrance Foyer Stainless Steel Appliances Solid Surface Counters Laundry Features Washer Hookup Levels One and One Half Rooms Primary Bathroom (Dual SinksSeparate Shower) Kitchen (Kitchen Exhaust FanPantryStainless Steel AppliancesSolid Surface Counters) Great Room Dining Room Bedroom 3 (Second Level) Bedroom 2 (First Level) Other (Entrance Foyer) Primary Bedroom (First Level Tray Ceiling(s)Linen ClosetMain Level MasterWalk-In Closet(s))

Property Features

Association Amenities Clubhouse Tennis Court(s) Association Fee 106 Association Fee Frequency Monthly Association Fee Includes Common Areas Recycling Recreation Facilities Trash Association YN Yes Builder Model Northbrook Builder Name Meritage Homes Community Features Clubhouse Recreation Area Tennis Court(s) Long Term Rental Allowed Pool Home Warranty YN Yes Lease Considered YN No Listing Terms Cash Conventional Location Inside City Limits Property Condition Under Construction Property Sub Type Detached Property Sub Type Additional Detached Security Features Smoke Detector(s) Special Listing Conditions None Utilities Electricity Available Natural Gas Available Sewer Available Underground Utilities Water Available Water Source Public Zoning RES

Coastal Carolina Association of Realtors logo Listing information © 2026 Coastal Carolinas Association of REALTORS® MLS. Listing provided by Meritage Homes of the Carolina:.


Coastal Carolina Association of Realtors logo© 2026 Coastal Carolinas Association of REALTORS® MLS. All rights reserved. IDX information is provided exclusively for consumers' personal, non-commercial use and may not be used for any purpose other than to identify prospective properties consumers may be interested in purchasing. Information is deemed reliable but is not guaranteed accurate by the MLS or Coldwell Banker Sea Coast Advantage. The data relating to real estate for sale or lease on this web site comes in part from CCAR. Real estate listings held by brokerage firms other than Coldwell Banker Sea Coast Advantage are marked with the CCAR logo or an abbreviated logo and detailed information about them includes the name of the listing broker. Data last updated: 2026-01-22T14:20:59.707.
 
https://bt-photos.global.ssl.fastly.net/ccar/orig_boomver_1_2529044-2.jpg https://bt-photos.global.ssl.fastly.net/ccar/orig_boomver_1_2529044-2.jpg https://bt-photos.global.ssl.fastly.net/ccar/orig_boomver_1_2529044-2.jpg
Logo
Coldwell Banker Sea Coast Advantage
,